Commercial Lease
142 Durham Street
An Inspiring home for your business.
This commercial lease opportunity is conceived to provide sustainable commercial spaces, offering businesses the opportunity to work in a central and highly desirable location in the heart of Tauranga’s CBD.
Adjacent to the exciting new tertiary education precinct, staff will enjoy seamless connectivity to the best of the city with direct access to Grey and Durham Streets and a front row seat to the ongoing multimillion dollar transformation of the city centre.
This development will be undertaken as a joint venture by locally owned and operated Zariba Holdings and Classic Developments. Both businesses have a formidable track record with extensive experience developing large-scale, purpose-built facilities across New Zealand.
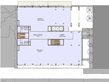
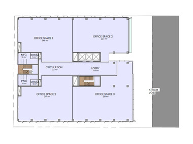
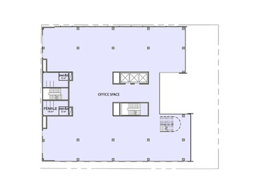
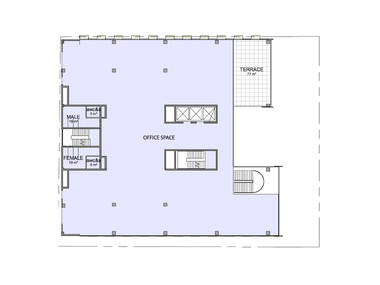
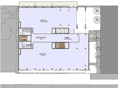
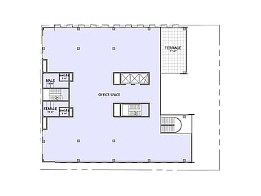
Office space
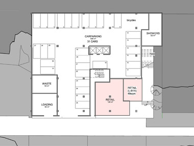
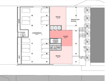
The separate services core is located centrally to the south and provides highly efficient and flexible centralised services distribution allowing for multiple tenant space and layout opportunities.
Outdoor space
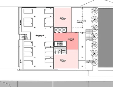
A generous public laneway with adjoining retail and hospitality strengthens urban connections and links Durham streets tertiary precinct through to Durham lane, improving the cities pedestrian experience.
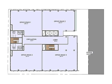
Flexible options
142 Durham Street offers bespoke floorplans and flexible spaces that can be structured to suit your business. Examples here show typical two office and four office layouts, but flexibility exists to modify the fit-out to suit an occupier. The inclusion of basement carparking, ground level Café and end-of-trip facilities add to the ample amenity at your doorstep. Click to enlarge.
Secure your space
Contact Dwayne Roper
P. 021 578 764
E. dwayne@zariba.co.nz
Don‘t miss this exclusive commercial lease opportunity
Contact us
M +64 21 578 764
E info@zariba.co.nz
Zariba Holdings
715 Cameron Road, Tauranga 3112,
New Zealand








